Compact P
Compact P is a multi-unit with several installations combined in one compact installation. It is intended for small dwellings with a ventilation requirement of up to 275 m3/h. Compact P ventilates the dwelling and produces domestic hot water. You can also combine the unit with a geothermal heat pump or an air source heat pump. Both of these can be fully integrated in Compact P.
By combining several installations in just one installation, you save considerable space in the machine room. Another advantage is that the control systems work in unison, which optimises power consumption and thereby enables an overall saving in energy consumption.
Airflow (see planning data for SEL/SFP values)
Min : 50 m3/hMax : 275 m3/h
The “heart and lungs” of the house
Compact P is not a traditional ventilation unit. In contrast to other ventilation units, it recovers 100% of the heat from the extract air. The counterflow heat exchanger makes it possible to recover up to 95% of the energy in the extract air. This is then used to heat the outdoor air. The integral heat pump will utilise any remaining energy for producing domestic hot water.
Compact P
|
CapacityCapacity of standard unit as a function of qv and Pt, ext. SEL values according to EN 13141-7 are for standard units with ISO 16890 Coarse 75% (G4) filters and without heating element. SEL values comprise the unit’s total power comsumption excl. control. Attention! The SEL values are measured and stated as a total value for both fans. |
![]() |
Temperature efficiencyTemperature efficiency as a function of volume flow qv [m3/h] for unit with counterflow heat exchanger. Temperature efficiency according to EN13141-7 (2°C / 20°C). NB! The temperature efficiency, is for the heat exchanger only (without heat pump operation). |
![]() |
COP (air-air)Heat output factor COP [-] supply air as a function of outdoor temperature t21 [°C] and volume flow qv [m3/h] in accordance with EN14511 at a room temperature t11 = 21°C COP according EN14511 is calculated for the heat pump and counter flow heat exchanger combined. |
![]() |
Heat output supply airHeat output Qc [W] as a function of qv [m3/h] and outdoor air temperature t21 [°C]. In accordance with EN 14511, t11=21°C (extract air). Heat output is the contribution to room heating added to the fresh air via Compact P to the supply air. The ventilation loss is the heat output that is lost without heat recovery at the given volume flow air. Ventilation loss: - - - - - - - - - - - - |
![]() |
Tapped waterTapped volume in litres Vmax [L] from Compact P tank as a function of tapped temperature t [C°] and tank temperature at 40°, 50° and 60°C. |
![]() |
Sound dataSounddata is for qv = 210 m3/h and Pt, ext = 100 Pa in accordance with EN 9614-2 for surface and EN 5136 for ducts. Sound output level LWA drops with falling air volumes and falling back-pressure. At a given distance, the sound pressure level LpA will depend on the acoustic conditions at the installation site.
|
![]() |
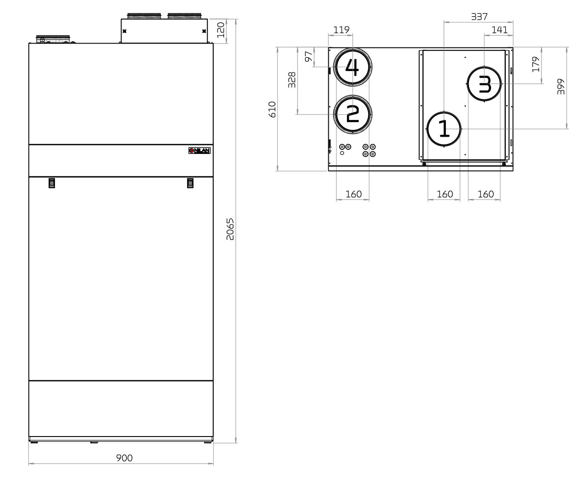
All dimensions are in mm. Connections: |
The CTS602 control system is an advanced control system with many settings options. The control system is supplied with factory default settings that can be adapted to the operational requirements in order to achieve best possible operation and utilisation of the unit. The HMI Touch panel provides an overview of the current operation of the unit. The structure of its menu makes it easy to navigate for both user and installer. You can choose from 2 different images for the main screen. External communication
You can find further information about all the functions in the Software and Installation instructions for the unit.
|
ATTENTION! When positioning the unit, you should always consider future services and maintenance. It is recommended that you leave a minimum of 60 cm of clear space in front of the unit. It must be easy to replace filters and it must be possible to replace, for instance, fans and other components. ATTENTION! The unit must be level to enable proper drainage from the condensate tray.
|
PHI certificate
The Compact P is certified by the German Passivhaus Institute, confirming that the unit meets strict requirements for energy efficiency and performance in low-energy buildings. Smart Grid Certificate
The Compact P supports Smart Grid technology, allowing the utility provider to manage operation based on electricity prices, ensuring the most cost-effective use of energy.
|





.jpg)












