Comfort CT500
Comfort CT500 is a ventilation unit that is suitable for large single-family dwellings.
Ducts are connected to the top of the unit, and the unit is therefore suitable for installation inside the dwelling. The white exterior of the unit means that it sits naturally with other domestic appliances in the utility room or machine closet.
Comfort CT500 is well insulated so you also have the option of installing it outside the climate screen.
Comfort CT500 has low power consumption and the unit has energy label A.
The Comfort CT500 is also available in a Polar version, which is equipped with a self-regulating preheating element. The preheating element protects the unit in cold outdoor temperatures by heating the supply air and preventing frost formation in the heat exchanger.
Airflow (see planning data for SEL/SFP values)
Min : 100 m3/hMax : 500 m3/h
Nilan App - Control the ventilation and heat pump directly from the mobile phone
|
Nilan has developed an App with great features where the user can control the ventilation and heat pump directly from the mobile phone. The App is intuitive, easy and safe to use, and allows the user to e.g. set the room temperature. More ventilation units can be connected using the same App to control the indoor climate in e.g. both the dwelling and the holiday home. More users can be connected the same App. When purchasing a Nilan gateway, the user can access the unit via the Nilan App. Get more information on the Nilan App
|
![]() |
|
CapacityCapacity of standard unit as a function of qv and Pt ext. SEL values according to EN 13141-7 are for standard units with ISO 16890 Coarse 75% (G4) filters and without heating element. SEL values comprise the unit´s total power comsumption incl. control. Attention! The SEL values are measured and stated as a total value for both fans. |
![]() |
Temperature efficiencyTemperature efficiency for units with counterflow heat exchanger according to EN13141-7 (dry). |
![]() |
Sound dataSound data for qv = 400 m3/h and Pt ext = 100 Pa according to EN 9614-2 for surfaces and EN 5136 for ducts. Sound output level LWA drops with falling air volume and falling back pressure. Sound output level LpA at a given distance will depend on acoustic conditions in the place of installation. |
![]() |
You can download AutoCad or Revit drawings with BIM data on several Nilan ventilation and heat pump solutions - the list is constantly being expanded. Click here to get more about BIM data on Nilan units
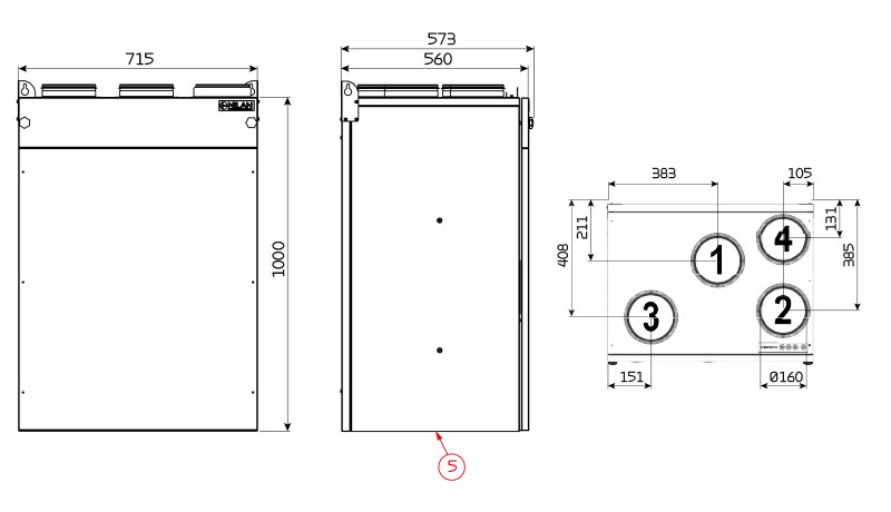
All dimensions are in mm. Connections:
Dimensional drawing Comfort CT500 Polar:
All dimensions are in mm. Connections: |
The CTS602 control system is an advanced control system with many settings options. The control system is supplied with factory default settings that can be adapted to the operational requirements in order to achieve best possible operation and utilisation of the unit. The HMI Touch panel provides an overview of the current operation of the unit, and the structure of its menu makes it easy to navigate for both user and installer. External communication The CTS602 control system has an open Modbus RS485 protocol that can be used for communication via external CTS systems.
You can find further information about all the functions in the Software and Installation instructions for the unit.
|
ATTENTION! When positioning the unit, you should always consider future services and maintenance. An open space of minimum 60 cm in front of the unit is recommended. It must be easy to change filters, and it must, for instance, be possible to remove the heat exchanger, and to replace fans or other components. ATTENTION! The unit must be level to enable proper drainage from the condensate tray. The unit is equipped with mounting brackets with holes for wall mounting at the top back of the unit.
|

.jpg)






