Comfort 450
Comfort 450 is an energy efficient ventilation unit with heat recovery for large dwellings or small commercial buildings.
The unit is available in both a right-facing and a left-facing model. It is well insulated and you can therefore install it outside the climate screen, for instance in an unused loft. That way, the unit does not have to take up space inside the building. If you place it in the loft, it is easy to block potential noise from the unit.
Comfort 450 is a unit that has been thoroughly tested. It has been produced for more than 15 years and it is updated frequently. Focus is on low power consumption, and the unit has therefore been given the excellent energy efficiency rating, A.
Airflow (see planning data for SEL/SFP values)
Min : 250 m3/hMax : 525 m3/h
Nilan App - Control the ventilation and heat pump directly from the mobile phone
|
Nilan has developed an App with great features where the user can control the ventilation and heat pump directly from the mobile phone. The App is intuitive, easy and safe to use, and allows the user to e.g. set the room temperature. More ventilation units can be connected using the same App to control the indoor climate in e.g. both the dwelling and the holiday home. More users can be connected the same App. When purchasing a Nilan gateway, the user can access the unit via the Nilan App. |
![]() |
|
CapacityCapacity of standard unit as a function of qv and Pt ext SEL values according to EN 13141-7 are for standard units with ISO 16890 Coarse 75% (G4) filters and without heating element. SEL values comprise the unit´s total power comsumption incl. control. Attention! The SEL values are measured and stated as a total value for both fans. |
![]() |
Temperature efficiencyTemperature efficiency for units with counterflow heat exchanger according to EN13141-7 (dry). |
![]() |
Sound dataSound data for qv = 300 m3/h and Pt ext = 100 Pa according to EN 9614-2 for surfaces and EN 5136 for ducts. Sound output level LWA drops with falling air volume and falling back pressure. Sound output level LpA at a given distance will depend on acoustic conditions in the place of installation. |
![]() |
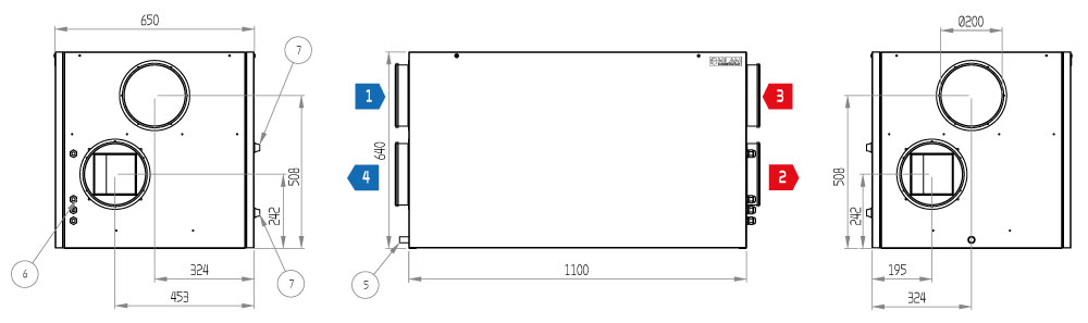
You can download AutoCad or Revit drawings with BIM data on several Nilan ventilation and heat pump solutions - the list is constantly being expanded. Click here to get more about BIM data on Nilan units Dimensional drawing Comfort 450 (Right version):
Dimensional drawing Comfort 450 (Left version):
All dimensions are in mm. Connections: |
The CTS602 control system is an advanced control system with many settings options. The control system is supplied with factory default settings that can be adapted to the operational requirements in order to achieve best possible operation and utilisation of the unit. The HMI Touch panel provides an overview of the current operation of the unit, and the structure of its menu makes it easy to navigate for both user and installer. External communication
You can find further information about all the functions in the Software and Installation instructions for the unit.
|
OBS! Ved opstilling af aggregatet bør der altid tages hensyn til fremtidig service og vedligehold. Der anbefales en minimum friplads foran aggregatet på 60 cm. Det skal være let at udskifte filtre og f.eks. skal det være muligt at kunne tage veksleren ud, udskifte ventilator eller andre komponenter. Derfor anbefales det også at forbinde aggregatet med kanalsystemet via fleksible forbindelser. OBS! Der er vigtigt, at aggregatet opstilles i vater for at opnå et ordentligt afløb fra kondensvandsbakken.
Aggregatet er støj- og vibrationssvag, men der bør alligevel tages højde for eventuelle vibrationer, der kan forplante sig fra aggregatet ud i de enkelte bygningsdele. For at skabe adskillelse mellem aggregat og underlag, anbefales det derfor at montere vibrationsdæmpere under aggregatet. Til øvrige bygningsdele og fast inventar bør der være ca. 10 mm afstand. KondensvandsafløbOBS! Der skal etableres vandlås i forbindelse med kondensafløbet for at sikre, at kondensvandet kan bortledes. Opstilles aggregatet uden for klimaskærmen, er det vigtigt, at sikre kondensvandsafløbet mod tilisning med et varmekabel. Det er installatørens ansvar at frostsikre afløbet.
|

.jpg)







