Comfort 250L/Comfort 250R
The Comfort 250L/Comfort 250R is an energy efficient ventilation unit, offering heat recovery for homes and smaller commercial buildings with ventilation requirements of up to 250 m3/h. Comfort 250 is only available for project sales.
Comfort 250L/R is equipped with a unique boost function intended for cooker hood operation. By activating user selection, you get the option of an extra 50 m3/h to ensure more suction in the cooker hood. The Comfort 250L/R can via the boost function provide 300 m3/h at 200 Pa external pressure drop.
The unit is often installed in an unused attic so it does not take up space in the utility room. This also means that it is easy to block potential noise from the unit so it does not enter the dwelling. The special design with all four connectors on the same side, in many cases makes the unit easier to place in the attic. The large filter door makes filter change easy and without any use of tools.
Comfort 250 creates a good indoor climate in the dwelling and ensures limited heat loss due to its highly efficient counterflow heat exchanger. Comfort 250L is the left version and Comfort 250R is the right version.
Comfort 250 is also available in a Polar version, which is equipped with a self-regulating preheating element. The preheating element protects the unit in cold outdoor temperatures by heating the supply air and preventing frost formation in the heat exchanger.
Airflow (see planning data for SEL/SFP values)
Min : 0 m3/hMax : 250 m3/h
Nilan App - Control the ventilation and heat pump directly from the mobile phone
|
Nilan has developed an App with great features where the user can control the ventilation and heat pump directly from the mobile phone. The App is intuitive, easy and safe to use, and allows the user to e.g. set the room temperature. More ventilation units can be connected using the same App to control the indoor climate in e.g. both the dwelling and the holiday home. More users can be connected the same App. When purchasing a Nilan gateway, the user can access the unit via the Nilan App. Get more information on the Nilan App
|
![]() |
|
CapacityCapacity of standard unit as a function of qv and Pt ext SEL values according to EN 13141-7 are for standard units with ISO Coarse >75% (G4) filters and without heating element. SEL values represent the unit’s total power comsumption for both ventilator, excl. control. Testet according to EN13141-7 Attention! The SEL values are measured and stated as a total value for both fans. |
![]() |
Temperature efficiencyTemperature efficiency for units with counterflow heat exchanger according to EN13141-7 (dry). |
![]() |
Temperature efficiencyTemperature efficiency for units with counterflow heat exchanger according to EN13141-7 (dry). |
![]() |
Sound dataSound data for qv = 126 m3/h and Pt ext = 100 Pa according to EN3744 for surfaces and EN 5136 for ducts. Sound output level LWA drops with falling air volume and falling back pressure. Sound pressure level LpA at a distance of 1 m from the system. |
![]() |
Sound dataSound data for qv = 250 m3/h and Pt ext = 100 Pa according to EN3744 for surfaces and EN 5136 for ducts. Sound output level LWAdrops with falling air volume and falling back pressure. Sound pressure level LpA at a distance of 1 m from the system. |
![]() |
You can download AutoCad or Revit drawings with BIM data on several Nilan ventilation and heat pump solutions - the list is constantly being expanded. Click here to get more about BIM data on Nilan units
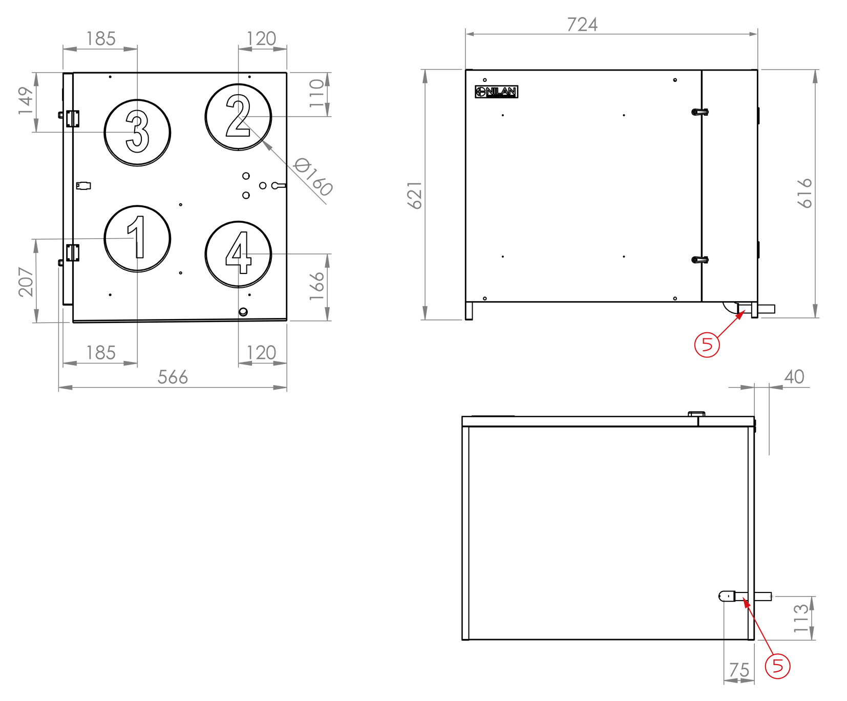
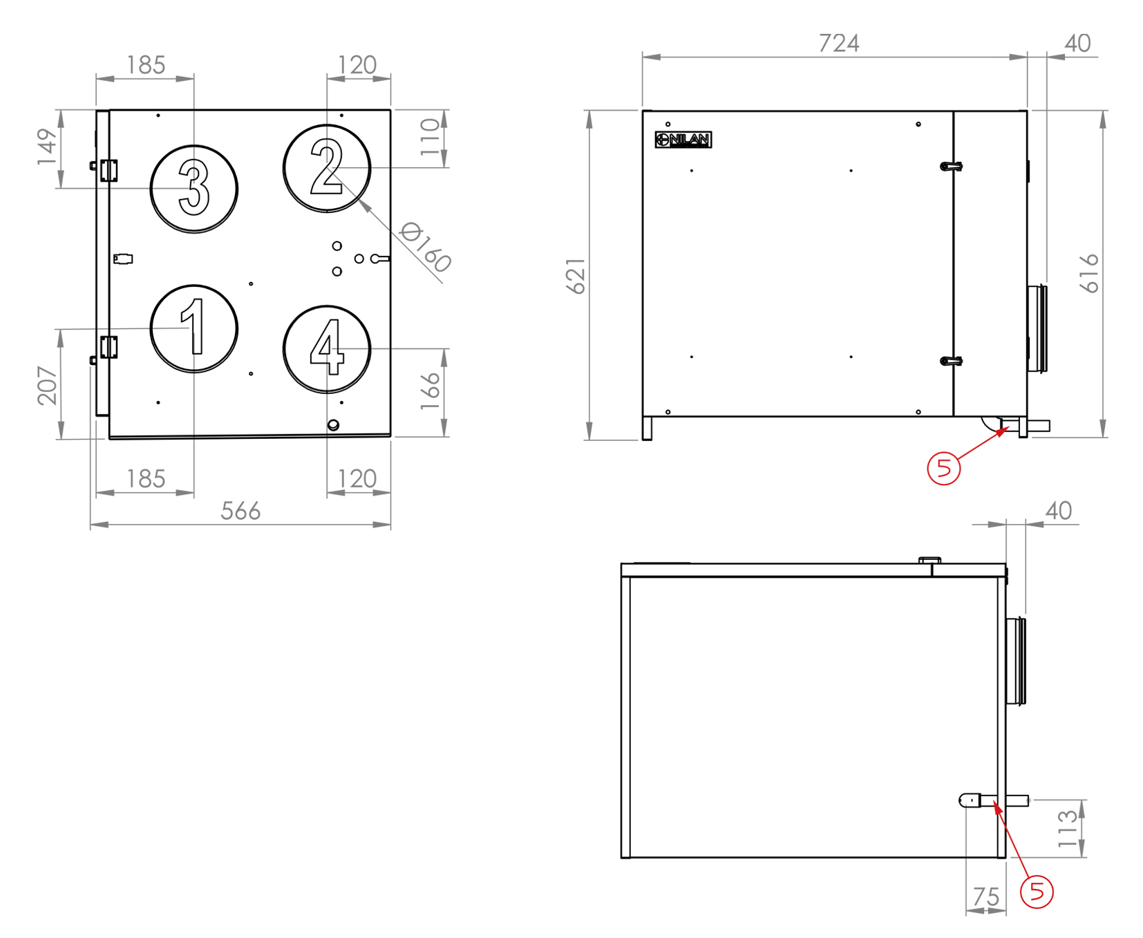
Dimensional drawing Comfort 250L (Left version)
Dimensional drawing Comfort 250R (Right version)
Dimensional drawing Comfort 250L Polar (Left version)
Dimensional drawing Comfort 250R Polar (Right version)
1. Outdoor air |
CTS400 is a simple and intuitive control panel with a complex control system that contains many useful functions. On the control panel you can set the fan speed level, turn the unit on and off and see potential alarms. When installed in rental properties, hotels etc., you can lock the panel so tenants cannot turn off the unit and/or alter the fan speed level. The many functions of the control system enable you to connect, for instance, after-heating elements and a CO2 or VOC sensor. The control system includes, as standard, user selection programs, an intelligent humidity control system and an integral fire automation system. CTS400 has open Modbus communication that enables connection to external CTS systems. The Modbus connection can also be connected to a Nilan gateway cloud solution that allows you to control and monitor the unit via a smartphone APP solution.
|
ATTENTION! When positioning the unit, you should always consider future services and maintenance. An open space of minimum 60 cm in front of the unit is recommended. It must be easy to change filters, and it must, for instance, be possible to remove the heat exchanger, and to replace fans or other components. ATTENTION! The cabinet tilts (is not horizontal), in that way the condensation water runs off more easily. It is important that the surface on which the unit stands is level, so the unit has the correct tilt. |











